Fassade Einsteinufer




Universität der Künste Berlin
LP 1–8 | BGF 12.786 m² | 2022 - 2025
Die Sanierung des denkmalgeschützten Gebäudeensembles der UdK Berlin am Einsteinufer leistet einen größtmöglichen Beitrag zur Einhaltung der Klimaziele der UdK. Ansatzpunkte hierfür sind der über die Anforderungen des GEG hinaus optimierte Wärmeschutz, das Recycling der Waschbetonplatten, die Minimierung der Plattenstärke der neuen Fassade durch Verwendung von Textilbewehrung sowie die Konzeption einer natürlichen Kühlung des Verwaltungsbereichs und einer natürlichen Lüftung des Ateliertraktes. Der Hof wird durch Ausweitung der Zugangsmöglichkeiten zum grünen Zentrum des Ensembles.
Biobank Berlin












Charité Universitätsmedizin
LP 1–9 | BGF 2.016 m² | 2019
Aufgabe bei der Planung der Biobank Berlin als core facility der Charité war es, ein Gebäude zu konzipieren, welches unterschiedliche Kryolagerungstechniken ermöglicht und offen für zukünftige Entwicklungen ist.
Die Biobank besteht aus sechs als Holzrahmenkonstruktion errichteten einzelnen „Boxen“. Die außenliegenden Boxen nehmen die Lagerflächen auf. Sie können ein- oder zweigeschossig ausgebaut werden, so dass unterschiedliche Raumhöhen, abhängig von der Lagertechnik, möglich sind. In den zentralen Boxen sind die notwendigen Labor- und Büroflächen der Biobank untergebracht. Hier werden die Proben angenommen und in die unterschiedlichen Lager verteilt.
Der Neubau der Biobank Berlin ist eines der ersten Laborgebäude in Holzbauweise in Deutschland und wurde als Referenzprojekt in den Holzbauatlas aufgenommen.
Institut für Pathologie







Charité - Universitätsmedizin
LP 1- 9 | BGF 4.255 m² | 2024
Das Baudenkmal Rudolf Virchow Ensemble ist vor allem aufgrund der Kontinuität seiner Nutzung beindruckend. Das Institut für Pathologie befindet sich auch heute noch in dem von Rudolf Virchow konzipierten 1905 errichteten denkmalgeschützten Gebäudeensemble auf dem Campus Mitte der Charité. Zum Zeitpunkt seiner Errichtung war das Gebäude eines der modernsten Laborgebäude weltweit – großräumlich organisiert und mit zentraler Lüftung versorgt.
Die Wiederherstellung der historischen großräumlichen Laborstruktur und die Umsetzung moderner Laborkonzepte haben sich bei der Konzeption der Sanierung sinnfällig ergänzt. Der Verbleib des Instituts für Pathologie bei denkmalgerechter Sanierung des Gebäudes ist gesichert.
Laborgebäude Energie





Helmholtz-Zentrum Berlin
LP 1 – 9 | NUF 520 m² | 2019
Moderne Forschungsgebäude müssen schnell auf sich ändernde Anforderungen reagieren, umbau- und erweiterbar sein. Das Laborgebäude Energie Gebäude ist der erste Baustein eines modular aufgebauten Gesamtkonzepts. Die angebotenen Laborflächen sind als Open Space konzipiert und flexibel bespielbar. Sie können unterschiedliche Labore und theoretische Arbeitsplätze aufnehmen.
Sämtliche dienenden Elemente – Treppen, Schacht, Sanitärräume – sind in den seitlichen „Kernen“ zusammengefasst. Die Schachtfläche ist für mögliche Nachrüstungen ausgelegt. Die Sinnfälligkeit von open space und Flexibilität zeigte sich umgehend im konkreten Fall: Statt einzelner Labore wurden großräumliche Versuchsflächen benötigt. Alle Anpassungen waren innerhalb des gegebenen Grundrisses möglich. Für das LE-Gebäude wurde eine BNB Zertifizierung in silber erreicht.
Vortragssäle Fakultät für Musik






Universität der Künste Berlin
LP 1–9 | BGF 450 m² | 2023 - 2025
Grundgedanke der Sanierung und akustischen Optimierung der Vortragssäle der Fakultät für Musik ist es die akustischen Anforderungen raumbildend umzusetzen. Abgeleitet von den spezifischen Raumgeometrien entstehen so Vortragssäle mit eigenständiger, konzentrierter Atmosphäre.
Laborgebäude Haus 7







Robert Koch - Institut
Wettbewerb | BGF 8.200 m²
Der Neubau des Laborgebäude Haus 7 vervollständigt das Ensemble des Robert Koch – Instituts an der Seestraße.
Die Kompaktheit des Entwurfs ermöglicht es, trotz der großen zu realisierenden Fläche einen funktionierenden Hof beizubehalten. Dem Hof zugewandt liegen die Kommunikations- und Büroflächen, die Labore gruppieren sich um den zentralen Erschließungskern. Sowohl Büro- und Kommunikationsflächen als auch Labor- und Auswerteflächen können entsprechend der Bedarfsentwicklung in ihrem Verhältnis variieren. Die Errichtung in Holzbauweise wird ermöglicht durch die Ausbildung des Kernbereichs in Massivbauweise, der alle Elemente mit höheren Brandschutzanforderungen aufnimmt. Die Fassade zieht sich wie ein Schuppenkleid mit integrierter Photovoltaik um den gesamten Baukörper.
Biorepository Bonn










Deutsches Zentrum für Neurodegenerative Erkrankungen
LP 1 – 9 | BGF 2.160 m² | 2022
Das Biorepository in Bonn dient der dauerhaften Lagerung von Proben der klinischen Forschung und der Rheinlandstudie zur Erforschung von Demenz und besteht aus einem Hauptlager- und einem Backup-Gebäude. Die Konzeption eines Grundmoduls von 12 x 12 m ermöglicht es, dass beide Baukörper bei steigendem Flächenbedarf systematisch erweitert werden können. Gemeinsam mit einem künftigen Rechenzentrum gruppieren sie sich um einen zentralen Platz und bilden so einen kleinen Nebencampus des DZNE in Bonn. Die Errichtung der Gebäude in Holzhybridbauweise ermöglicht die Maximierung des Holzanteils und somit die Optimierung der CO2-Bilanz der Konstruktion. Durch die Integration von Geothermie und Photovoltaik ist es möglich, den hohen Energiebedarf der Lagertechnik zumindest teilweise vor Ort regenerativ zur Verfügung zu stellen.
Charité Eingang Nord



Charité Universitätsmedizin
Wettbewerb 2020, 3. Preis | BGF 3.650 m²
Chemical Invention Factory








TU Berlin, John-Warner-Center
Wettbewerb 2020, 3. Preis
Das John-Warner-Center für Start-Ups in Green Chemistry beschäftigt sich mit der Entwicklung effizienter Herstellungsmethoden in der Chemie mit dem Ziel der Reduzierung des Energieaufwandes bzw. der CO2-Emission. Der Entwurf für das John-Warner-Center unterstützt dieses Ziel durch Kompaktheit der Grundrisslösung, Flexibilität der Nutzung und ressourcenschonende, weitestgehend klimaneutrale Materialität.
Institut für Theoretische Biologie






Humboldt-Universität Berlin
LP 1-9 | BGF 1.450 m² | 2021
Das ehemalige Dienstwohngebäude der Tieranatomie wurde für die Nutzung durch die Arbeitsgruppe Theoretische Biologie umgebaut. Die Grundrissstruktur des denkmalgeschützten Gebäudes bleibt ablesbar. Die Forschungsflächen gruppieren sich als interne Nutzungseinheit um einen als Möbel ausgebildeten Kern. Hier sind Teeküche, Kopierer, Schrank- und Regalflächen angeordnet. Die Büros der Wissenschaftler sind durch Glaswände von dem zentralen Bereich abgetrennt, so dass ungestörtes Arbeiten möglich ist und gleichzeitig die Flächen als Raumzusammenhang erlebbar bleiben. Erhalt der historischen Spuren an der Fassade, Wiederverwendung der alten Holzdielen und Ziegel als Bodenbelag kennzeichnen den behutsamen Ansatz der Sanierung.
Universitätsklinikum Würzburg






Neubau Kopfkliniken und Zentrum Frauen - Mutter - Kind
Wettbewerb 2021 | BGF 177.000 m²
5 Modulare Grundschulen Berlin









Senatsverwaltung für Stadtentwicklung und Wohnen Berlin
Wettbewerb 2018, Anerkennung
Das Lernhaus als „Schule in der Schule“ bildet das inhaltlich und räumlich klar identifizierbare Grundmodul der Schule. In den Lernhäusern gruppieren sich die Klassen- und Teilungsräume sowie der Teamraum der Lehrer um das zentrale Forum. Die Garderoben liegen im Bereich der Zugänge. Die strukturelle und konstruktive Ausbildung der Schule ist durch ein durchgehendes Gebäuderaster und einen hohen Grad an elementierter Bauweise geprägt.
Modul, Typ und Element verfolgen auf unterschiedlichen Ebenen das gleiche Ziel: Die Entwicklung rationaler Funktionseinheiten und Konstruktionssysteme, die eine hohe Gestaltqualität mit einer effizienten Bauweise verbinden.
In Zusammenarbeit mit Müntinga & Puy Architekten, Rentschler und Riedesser Ingenieure, Häfner Jiménez Betcke Jarosch Landschaftsarchitektur.
Interim Omics





Max-Delbrück-Zentrum für Molekulare Medizin
LP 1- 9 | BGF 1.719 m² | 2014
In denkbar kurzer Zeit und mit kleinstem Budget (220€ / m² NF) sollten in einem ehemaligem Tierlaborgebäude hochspezialisierte Interimsflächen für die OMICS-Arbeitsgruppen des Berliner Instituts für Gesundheitsforschung / Berlin Institut of Health (BIH) geschaffen werden.
Machbar war dies durch die Klarheit des Sanierungskonzeptes und die Fokussierung auf punktuelle Eingriffe sowie einem differenzierten Nachnutzungskonzept.
Der Erfolg des Umbaus wird auch daran deutlich, dass die nutzenden Arbeitsgruppen bis heute in dem als Interim konzipierten Gebäude verbleiben möchten.
Kindertagesstätte Ortlerweg




Bundesamt für Bauwesen und Raumordnung
Wettbewerb 2021, Anerkennung | BGF 2.016 m²
Lise-Meitner-Campus




Helmholtz-Zentrum Berlin
Rahmenplanung | BGF 84.000 m² | 2016
Der Lise-Meitner-Campus für Materialien und Energie des Helmholtz-Zentrums Berlin befindet sich im Umbruch. Der als Neutronenquelle dienende Forschungsreaktor BER II, die zentrale Forschungseinrichtung des Campus, wurde 2020 abgeschaltet.
Der in enger Abstimmung mit dem Helmholtz-Zentrum Berlin entwickelte Rahmenplan ermöglicht durch differenzierte Baufelder eine schrittweise Entwicklung und macht das umgebende Grün auch im inneren des dann autofreien Campus erlebbar.
Rahmenplanung in Arge mit yellow z berlin urbanism architecture, häfner jiménez betcke jarosch landschaftsarchitektur.
Berlin Center of Advanced Therapies (BeCAT)





Charité Universitätsmedizin
Wettbewerb 2017, 3. Preis | BGF 3.092 m²
Das BeCAT soll der Entwicklung, Produktion und Erprobung neuer Therapieansätze dienen, die auf der Produktklasse der ATMPs beruhen. Die hochinstallierten, zugangskontrollierten Flächen mit sensiblen Reinraumbereichen (GMP) werden in den Obergeschossen untergebracht. Sie sind so angeordnet, dass die technische Revision und Nachinstallation nutzungsunabhängig möglich ist. Das Flächenlayout der Reinraumbereiche ist vom Rohbau unabhängig und kann an geänderte Nutzungsszenarien angepasst werden.
Die Grundform des BeCAT orientiert sich an den benachbarten denkmalgeschützten Gebäuden, die Fassade aus Einbrand-lasierten Keramikplatten korrespondiert in Farbton und Körnigkeit mit den Putzflächen des historischen Ensembles.
Der Simulierte Mensch






Charité Universitätsmedizin | Technische Universität Berlin
Wettbewerb 2018, 3. Preis | BGF 6.010 m²
Kommunikation unter den Wissenschaftlern verschiedener Herkunftsrichtungen und Austausch mit einer interessierten Öffentlichkeit sind die zentralen Elemente der wissenschaftlichen Idee für den Neubau Si-M. Diese Idee spiegelt sich in Struktur und Organisation des Gebäudes wider.
Mit der Verteilung der Flächen auf Splitlevels gelingt es, eine zusammenhängende Forschungslandschaft zu schaffen, bei der das Verbindende zwischen den Themen und Arbeitsgruppen betont wird. Über die Agora im Erdgeschoss kommuniziert das Gebäude mit der Öffentlichkeit.
In Zusammenarbeit mit schmieder.dau:architekten, Holzwarth Landschaftsarchitetkur.
Maschinenhaus Kälte





Helmholtz-Zentrum Berlin
LP 1 – 9 | BGF 416 m² | 2014
Technikgebäude stehen meist nicht im Fokus der Gestaltung eines Campus, doch prägen sie dessen Gesamterscheinung entscheidend mit. Beim Neubau der Kältezentrale des Helmholtz-Zentrums Berlin in Wannsee war es unser Anliegen, innerhalb der heterogenen Umgebung einen kompakten und klaren Baukörper auszubilden. Dies wird erreicht durch eine zweigeschossige Ausbildung mit den Kältemaschinen im 1. Geschoss direkt über den Pump- und Schalträumen im EG. Die Einfachheit des Baukörpers wird unterstützt durch die Beschränkung auf zwei Materialien. Profilglasflächen mit und ohne transluzente Wärmedämmung werden den Sichtbetonflächen gegenübergestellt.
Foyer Fakultät für Musik




Universität der Künste Berlin
LP 1 – 9 | BGF 6.500 m² | 2020
Robert-Rössle-Institut







Berlin Institut of Health
Wettbewerb 2016, 3. Preis | BGF 6.650 m²
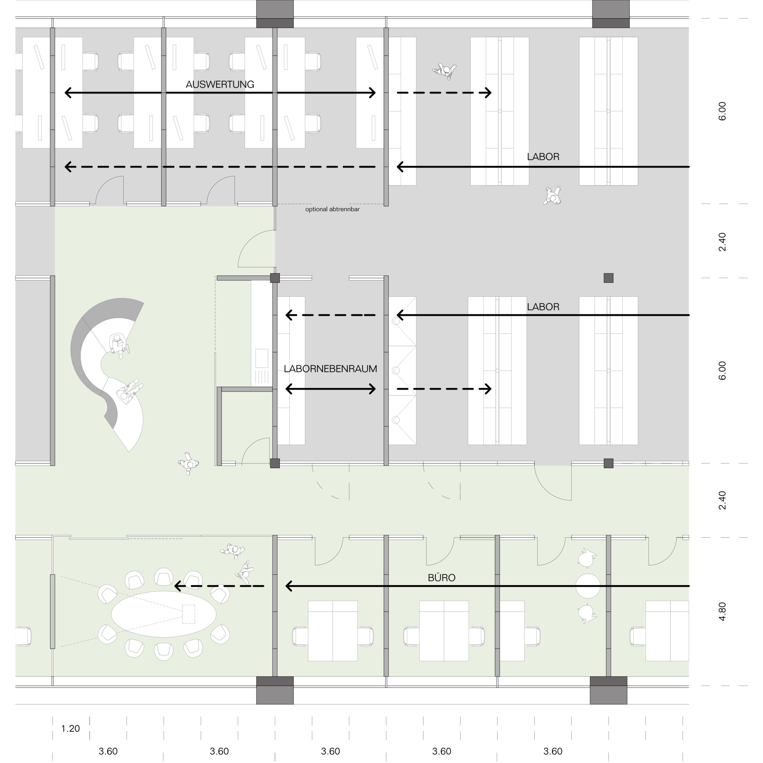
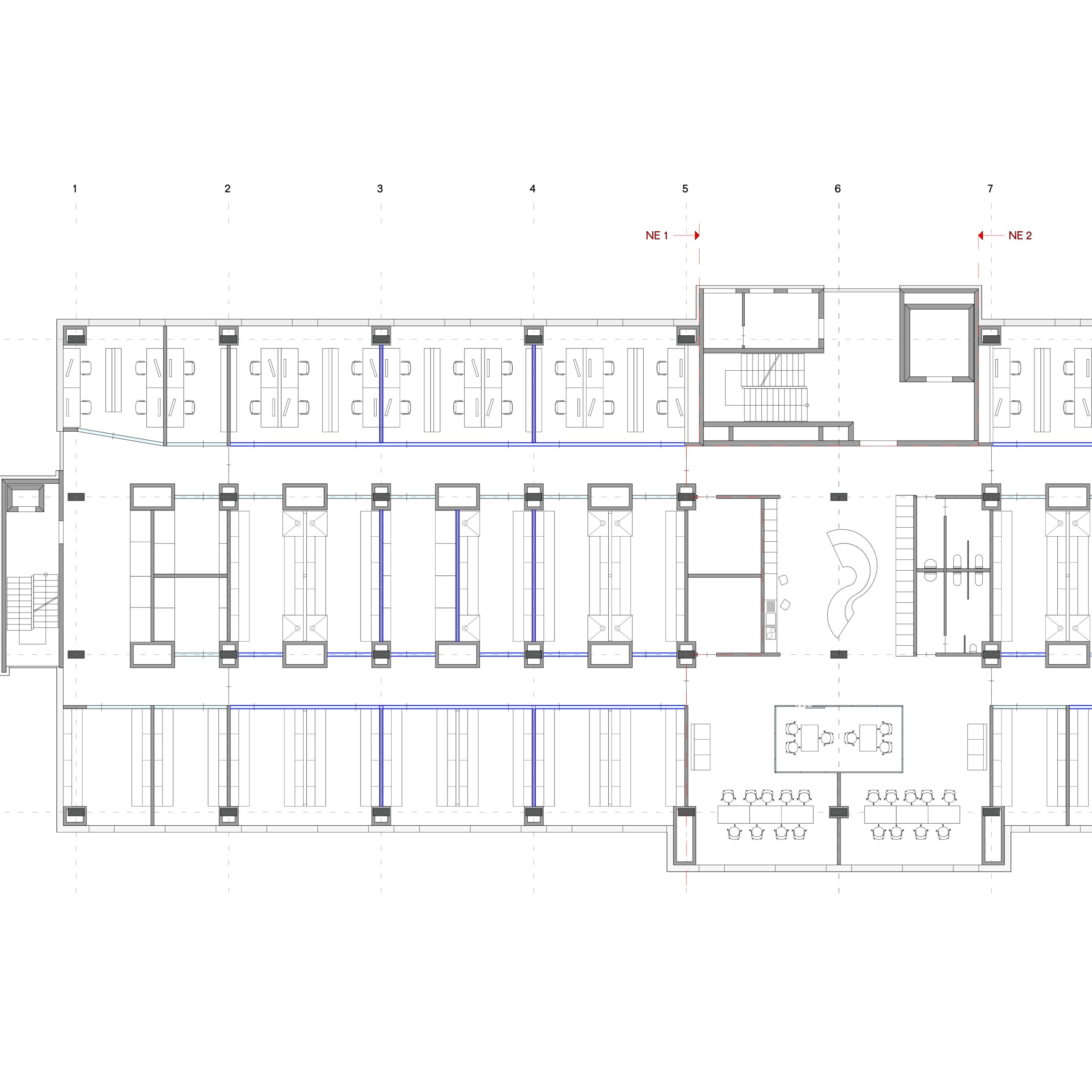
Büros, Auswertung, Labore, Sonderlabore und Labornebenräume stellen unterschiedliche Anforderungen an die technische Infrastruktur wie Luftwechsel, Zugangskontrolle etc. Gleichzeitig ist eine möglichst hohe Nutzungsflexibilität erforderlich, da sowohl die Flächenverhältnisse zwischen den unterschiedlichen Nutzungen als auch die von diesen abgeleiteten Anforderungen an die Räume einem stetigen Wandel unterliegen und von konkreten Forschungsprofilen abhängig sind. Die als Open Lab Space konzipierte Grundrissstruktur soll ein Höchstmaß an Flexibilität bei gleichzeitiger Berücksichtigung der differenzierten Raumanforderungen erreichen.
Der Erweiterungsbau des Robert-Rössle-Instituts ist so gesetzt, dass er zum Kopfbau des Gesamtgebäudes wird.
In Zusammenarbeit mit: Arnke Häntsch Mattmüller Architekten Rentschler; Riedesser Ingenieure: Betcke Jarosch Landschaftsarchitektur.
Fassade MDC.C




Max-Delbrück-Centrum für Molekulare Medizin
LP 1 – 8 | Fassadenfläche 1.001 m² | 2018
Im Kommunikationszentrum MDC.C des MDC finden jährlich rund 300 wissenschaftliche Kongresse und Seminare statt. Das Gebäude wurde im Jahr 2001 errichtet. Durch die prägnante rote Fassade stellt es einen Blickfang auf dem Campus des MDC dar.
Die als WDVS ausgeführte Bestandsfassade musste aufgrund massiver Feuchteschäden saniert werden. Grundhaltung der Sanierung ist es, die bestehende Fassade nicht zurückzubauen und zu ersetzen, sondern sie zu ergänzen, verbessern, fortzuschreiben. Die Überbauung der Bestandsfassade mit einer vorgehängten Konstruktion aus einbrandlasierten Keramikplatten erfolgte im laufenden Betrieb.
erchinger wurfbaum architekten PartGmbB
pappelallee 24, 10437 berlin
+49 30 47375414
mail@erchingerwurfbaum.de
© 2021 erchingerwurfbaum. All Rights Reserved